EDIFICACIÓN 07_VIVIENDA UNIFAMILIAR EN VRSA, PORTUGAL

| LOCALIZACIONES | RUA DE LATERIA Nº 3. VILA REAL DE SANTO |
| FECHA | 2023/2025 |
| TIPO | NUEVA PLANTA |
| PROMOTOR | PRIVADO |
| EQUIPO LOCAL | MAKINARK, INÉS PALMA |
| COLABORADORA | LUCÍA HIDALGO FUERTES |
| ESTADO | EN CONSTRUCCIÓN |
Fundada en 1774 a orillas del río Guadiana por el Marqués de Pombal como una visión del Portugal ilustrado, el trazado en cuadrícula y la homogeneidad edilicia de Vila Real de Santo António son un eco de la reconstrucción de Lisboa tras el terremoto de 1755.
La parcela -de cinco metros de ancho por treinta de largo y con un desnivel descendente de 90 centímetros- se encuentra en el barrio de Hortas, a pocos minutos a pie de la plaza Marqués de Pombal, centro de la ciudad y permite la construcción de una vivienda de programa mínimo.
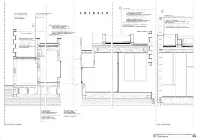
La vivienda se concibe como un recorrido longitudinal jalonado por patios. El patio de acceso, que permite filtrar la relación entre la calle y el interior, proporciona la adecuada privacidad con respecto al espacio público, eliminando toda necesidad de ventilar estancias directamente a él.
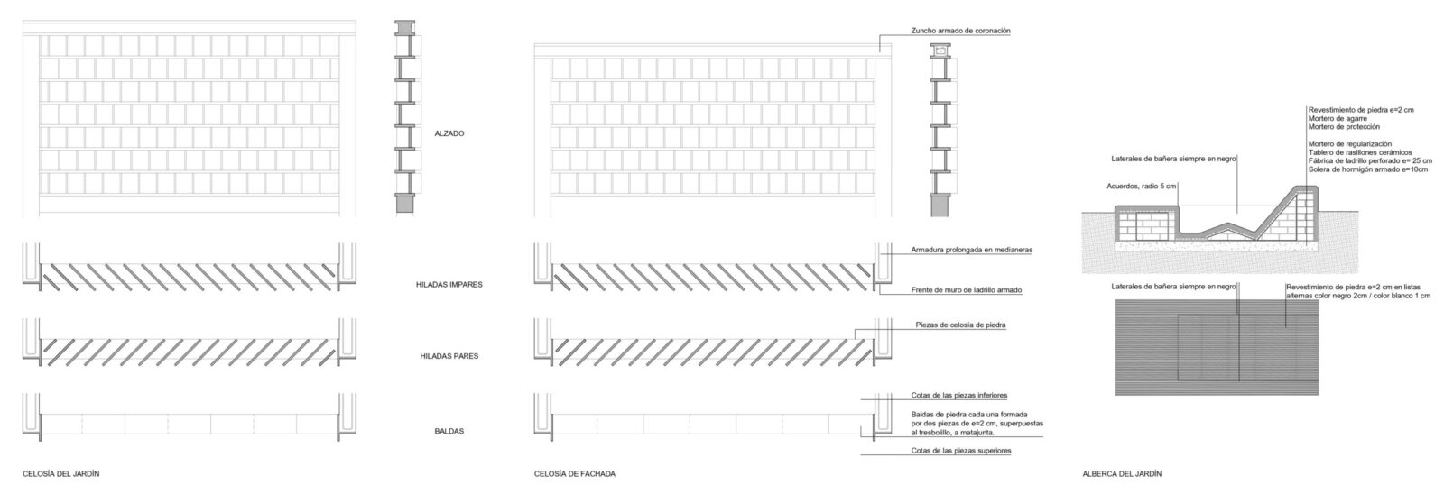
El recorrido se establece junto a la medianera izquierda mientras estancias y patios se suceden junto a la derecha, transparentándose de forma que puede recorrerse con la mirada la práctica totalidad de la parcela a través de espacios interiores y exteriores sucesivamente, proporcionando una sensación de amplitud muy oportuna en una parcela tan angosta. El recorrido se interrumpe en el salón con la ubicación de la cocina, que se asoma al jardín final fundiéndose con la terraza. Una celosía en fachada sugiere el carácter poroso de la vivienda sin que pierda privacidad. Este elemento se reproduce en el límite de la pérgola que se construye como fondo y en el frente del salón hacia el jardín con la voluntad de “jugar” con la luz de poniente, orientación de la parcela y de la vista desde el interior.
La cubierta se ocupa con grandes jardineras y se cubre con una pérgola a modo de estancia exterior, espacio que permite expandir las vistas hacia un pinar cercano, en contraste con la planta baja, concebida como un grupo de espacios entre dos “hortus conclusus”.









