EDIFICACIÓN 03_HOTEL VIENTO 10

| LOCALIZACIÓN | CALLE RONQUILLO BRICEÑO Nº10. CÓRDOBA |
| FECHA | 2006 |
| TIPO | REHABILITACIÓN / EDIFICIO PATRIMONIAL |
| PROMOTOR | PRIVADO |
| ESTADO |
CONSTRUIDO CON DOLORES GARCÍA GUIJO, ARQUITECTA (PROYECTOS BÁSICO Y DE EJECUCIÓN) |
La vivienda -originalmente propiedad de un lutier- estaba en un estado de deterioro constructivo y tipológico avanzado. Las alteraciones sufridas habían menoscabado los valores arquitectónicos del edificio: su división en dos viviendas le arrebató la simetría original y el tabicado de arcos anulaba el valor del patio.
La transformación del edificio en hotel exigía tanto una limpieza de elementos añadidos como una consolidación estructural y constructiva para recuperar una arquitectura doméstica que, sin ser culta, sí era valiosa en su configuración tipológica y estética.
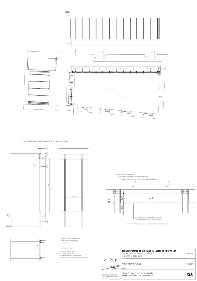
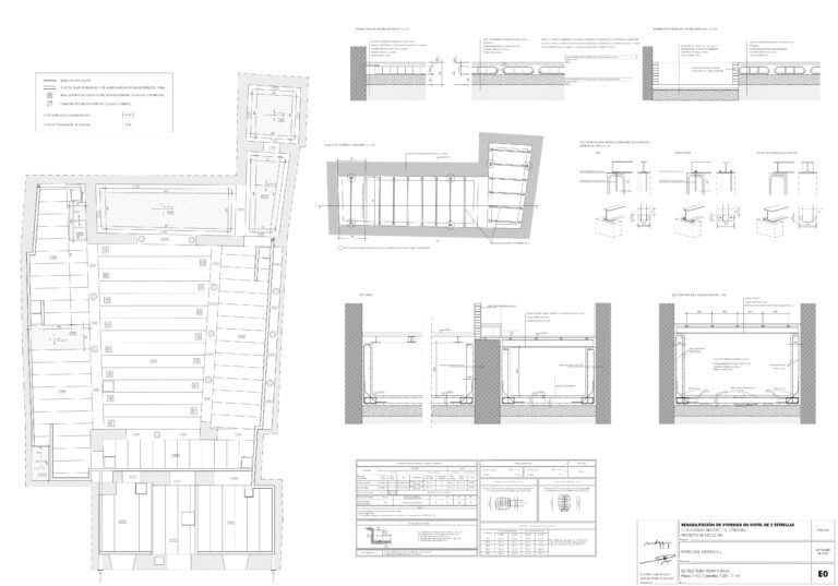
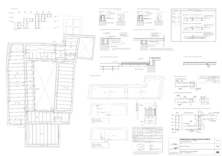
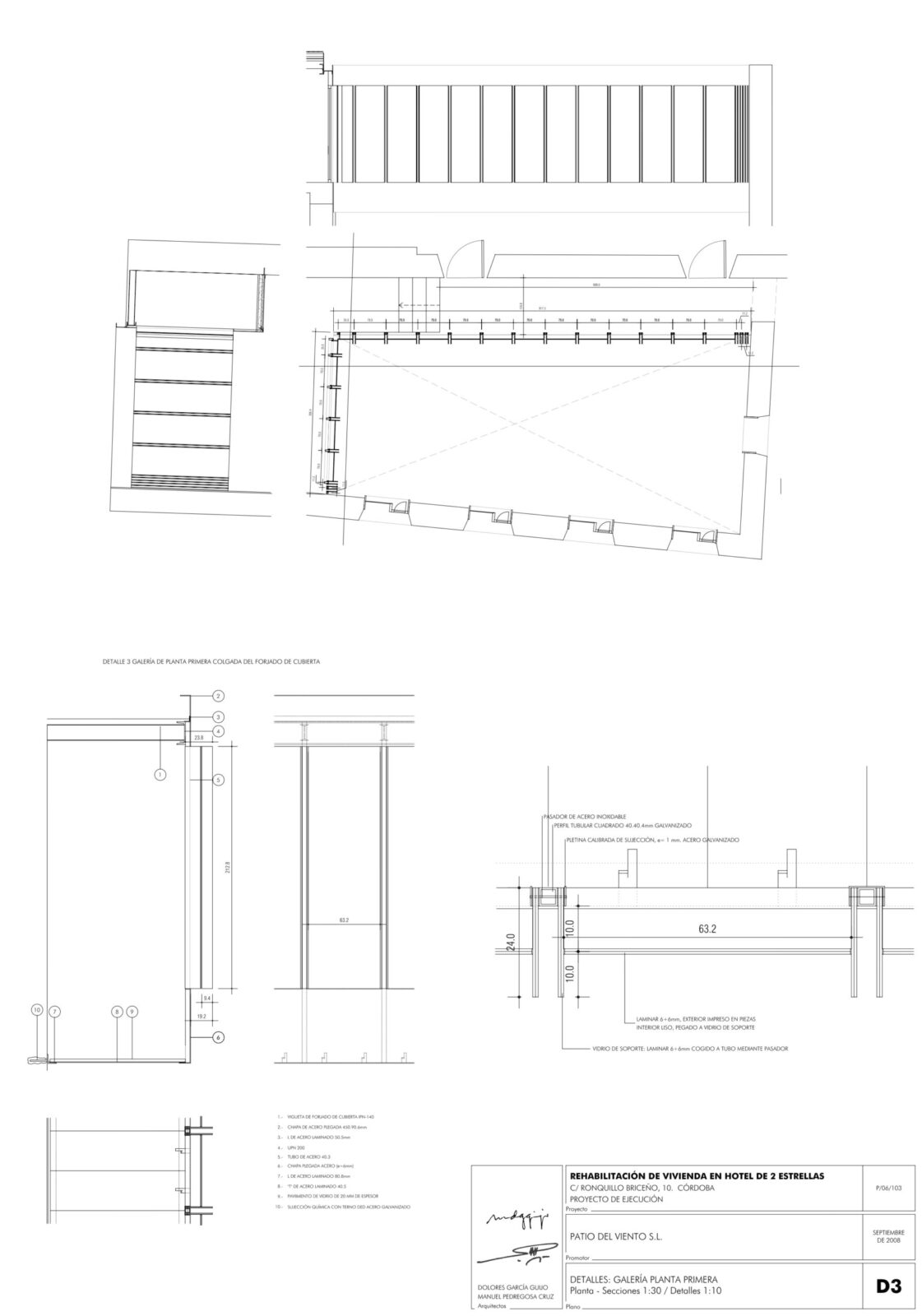
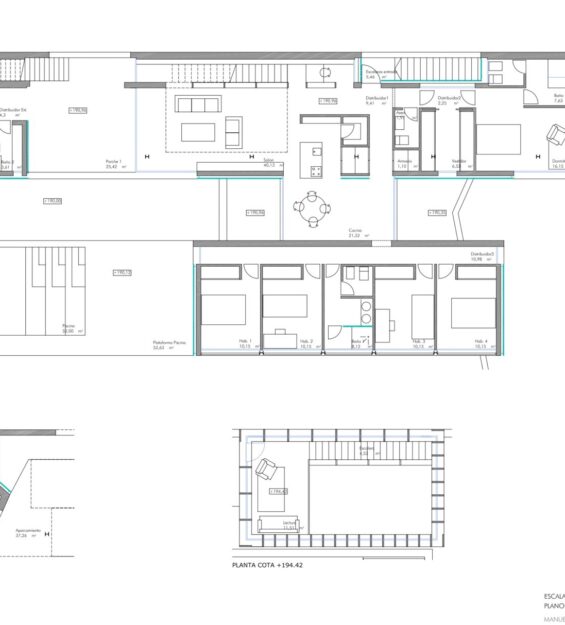
La intervención recupera la autonomía de los elementos tipológicos y funcionales: el zaguán, el patio, las galerías y la escalera, ordenándolos en una relación jerárquica que hace comprensible el edificio y le devuelve la claridad y las transparencias perdidas.
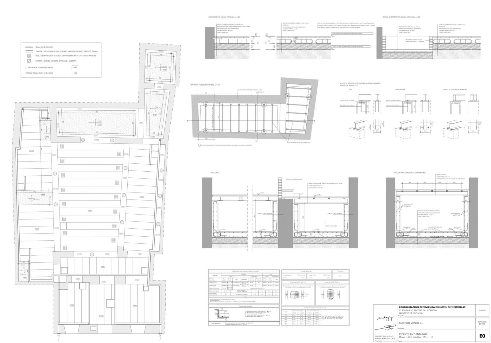
El reto constructivo exigía un exhaustivo nivel de precisión en el desarrollo de los detalles, de forma que el uso de soluciones técnicas contemporáneas se percibiese proporcionado en un contexto histórico, produciéndose un diálogo natural entre ambos lenguajes.























