EDIFICACIÓN 04_VIVIENDA UNIFAMILIAR AISLADA EN CÓRDOBA

| LOCALIZACIONES | CÓRDOBA |
| FECHA | 2010 |
| TIPO | NUEVA PLANTA |
| PROMOTOR |
PRIVADO CON JACINTA ORTIZ MIRANDA, ARQUITECTA |
| ESTADO | CONSTRUIDO CON ALTERACIONES (DIRECCIÓN DE OBRA AJENA) |
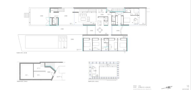
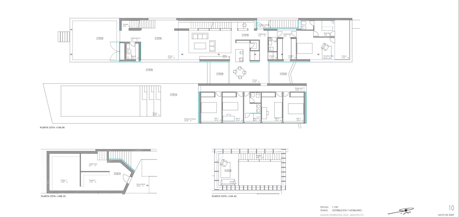
La parcela es alargada y presenta una acusada pendiente ascendente desde fachada desde cuya coronación hay excelentes vistas hacia poniente y limitadas hacia el sur. Se explana la parte superior con objeto de elevar sobre ella la planta baja de la vivienda, que a efectos urbanísticos se justificó como planta primera, de forma que se pudieron obtener vistas hacia el sur por encima de la edificaciones circundantes.
El acceso se produce mediante una escalera exterior que conduce al centro de la vivienda, rótula en la que se articulan la zona de día -salón con acceso a porches y cocina- zona de noche principal y galería hacia el comedor y zona de dormitorios de los hijos.
El salón se prolonga en porches cubiertos y la doble altura se cierra con una cubierta plegada que recoge la luz del atardecer y la refleja en el interior. La edificación se independiza del suelo, elevándose levemente sobre él y se proyecta hacia la fachada construyendo un porche cubierto de entrada que da cobijo a las plazas de aparcamiento, incluyéndolas en el discurso arquitectónico.








