CONCURSOS 01_TRES ESQUINAS DE LA HABANA

| LOCALIZACIONES |
HABANA VIEJA: SAN IGNACIO / SANTA CLARA CENTRO HABANA: GALIANO / ÁNIMAS MALECÓN / LEALTAD LA HABANA. CUBA |
| FECHA | 2000 |
| PROMOTOR | CONSEJERÍA DE OBRAS PÚBLICAS Y TRANSPORTES DE LA JUNTA DE ANDALUCÍA / OFICINA DEL HISTORIADOR DE LA CIUDAD DE LA HABANA |
| ESTADO |
PRIMER PREMIO / CENTRO HABANA PRIMERA MENCIÓN / HABANA VIEJA ANTEPROYECTO CON FRANCISCO DAROCA BRUÑO Y GUDULA RUDOLF, ARQUITECTOS |
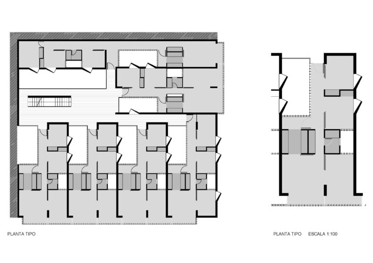
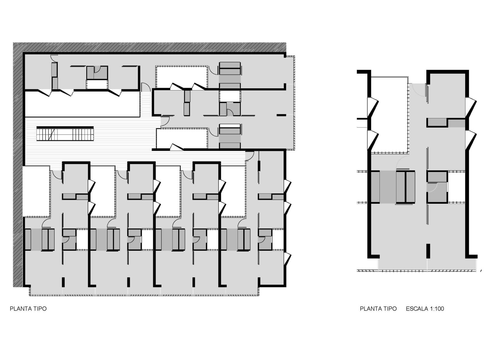
El concurso proponía la actuación en tres parcelas en esquina: una en La Habana Vieja, otra en Centro Habana y otra en el Malecón de La Habana. El programa para los tres edificios era de viviendas para transeúntes que habrían de ser ocupadas temporalmente por residentes de cada uno de estos tres barrios de La Habana mientras sus edificios eran rehabilitados.
Dadas las condiciones climáticas y de costumbres vivenciales de La Habana, se concibe el edificio como un sólido taladrado por patios en vertical y transparencias en horizontal que van creando una red entretejida de dos mallas sobre el cuerpo sólido del edificio.
La tradición del lugar de emplear sistemas de cierre no basados en el vidrio sino en sistemas móviles de persianas o lamas, que consiguen el grado de iluminación-oscurecimiento y de ventilación deseado, es empleado netamente en la propuesta. Como canasta de mimbre, la diafanidad del aire es una de las peculiaridades de los edificios de viviendas cubanos, donde los espacios comunes pueden llegar a ser partícipes del mundo luminoso y ventilado de las casas.
Contenida entre dos celosías, una a calle y otra a patio, la vivienda se articula como una sucesión de espacios que mediante puertas correderas pueden incorporarse o segregarse de las demás funciones. Así los dormitorios participan de la galería de circulación, la cocina se sitúa como elemento filtro, con aperturas en sendos lados opuestos, entre el estar y el patio de servicio, el que es capaz de formar continuidad con la galería, conjuntamente apersianados. La indagación tipológica da como resultado una vivienda tipo de dos piezas paralelas que se despliegan abisagradas para registrar el fondo de parcela, adaptándose a diferentes situaciones sin apenas sufrir alteraciones sobre el tipo base y creando unos espacios de relación en cada planta configurados por la sucesión de patios.











