CONCURSOS 06_REHABILITACIÓN INTEGRAL DE ANTIGUO HOSPITAL “NUESTRA SEÑORA DE LA MONTAÑA” PARA COMPLEJO FORMATIVO EN ARTES ESCÉNICAS

| LOCALIZACIÓN | AVENIDA DE ESPAÑA Nº 2, CÁCERES |
| FECHA | 2025 |
| PROMOTOR | CONSEJERÍA DE EDUCACIÓN, CIENCIA Y FORMACIÓN PROFESIONAL. JUNTA DE EXTREMADURA |
| ESTADO |
ANTEPROYECTO CON ROSA MARÍA PALACIOS GARRIDO, JOSÉ RODRÍGUEZ LUCENA Y CARLOS MONTES GONZÁLEZ, ARQUITECTOS |
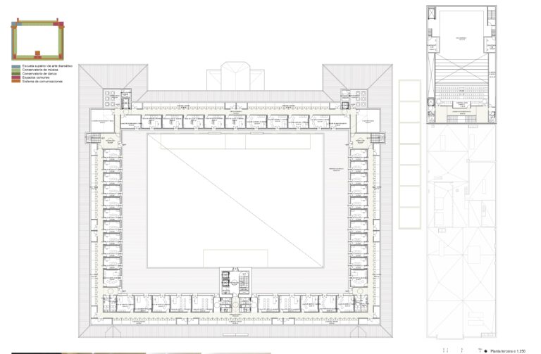
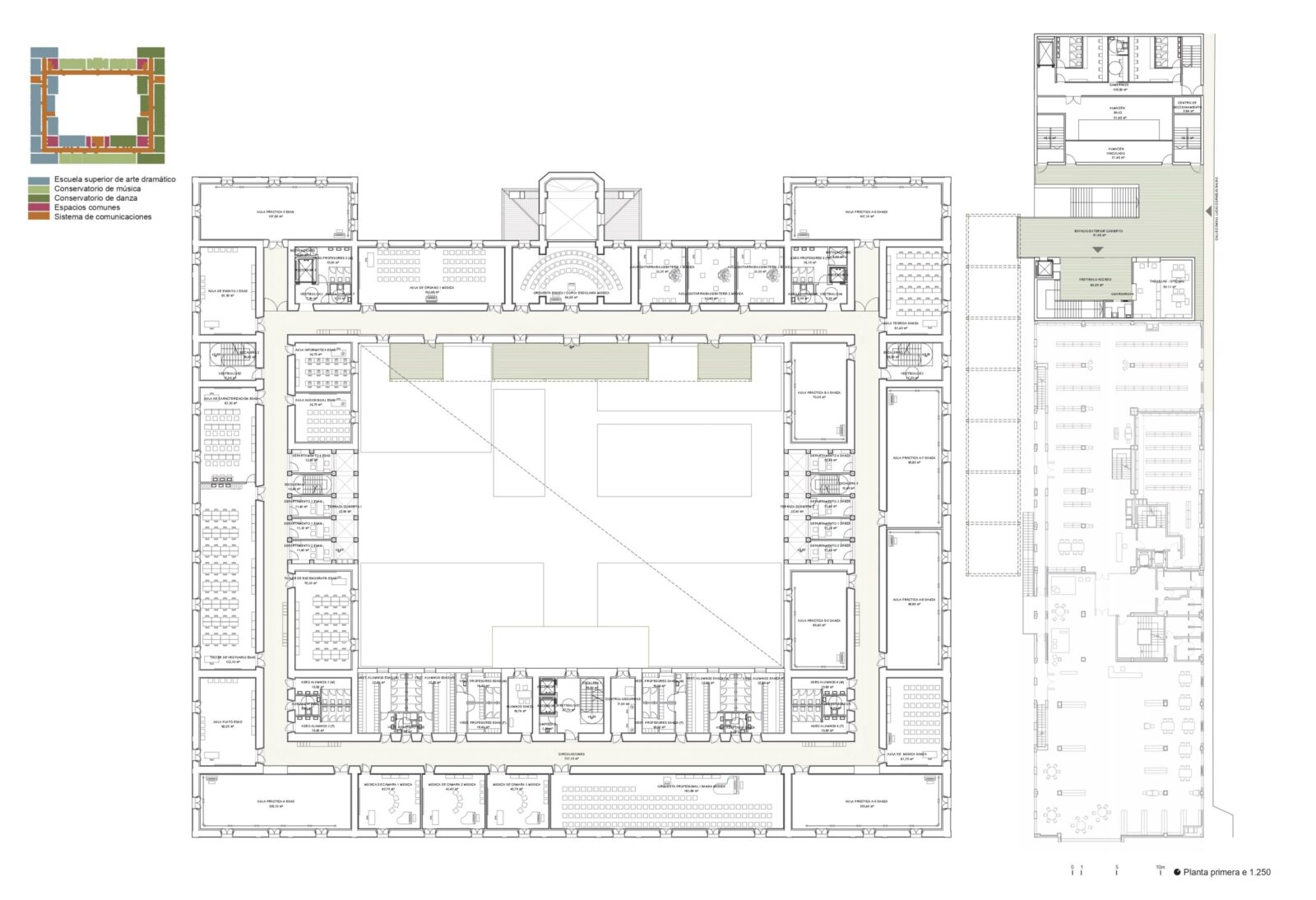
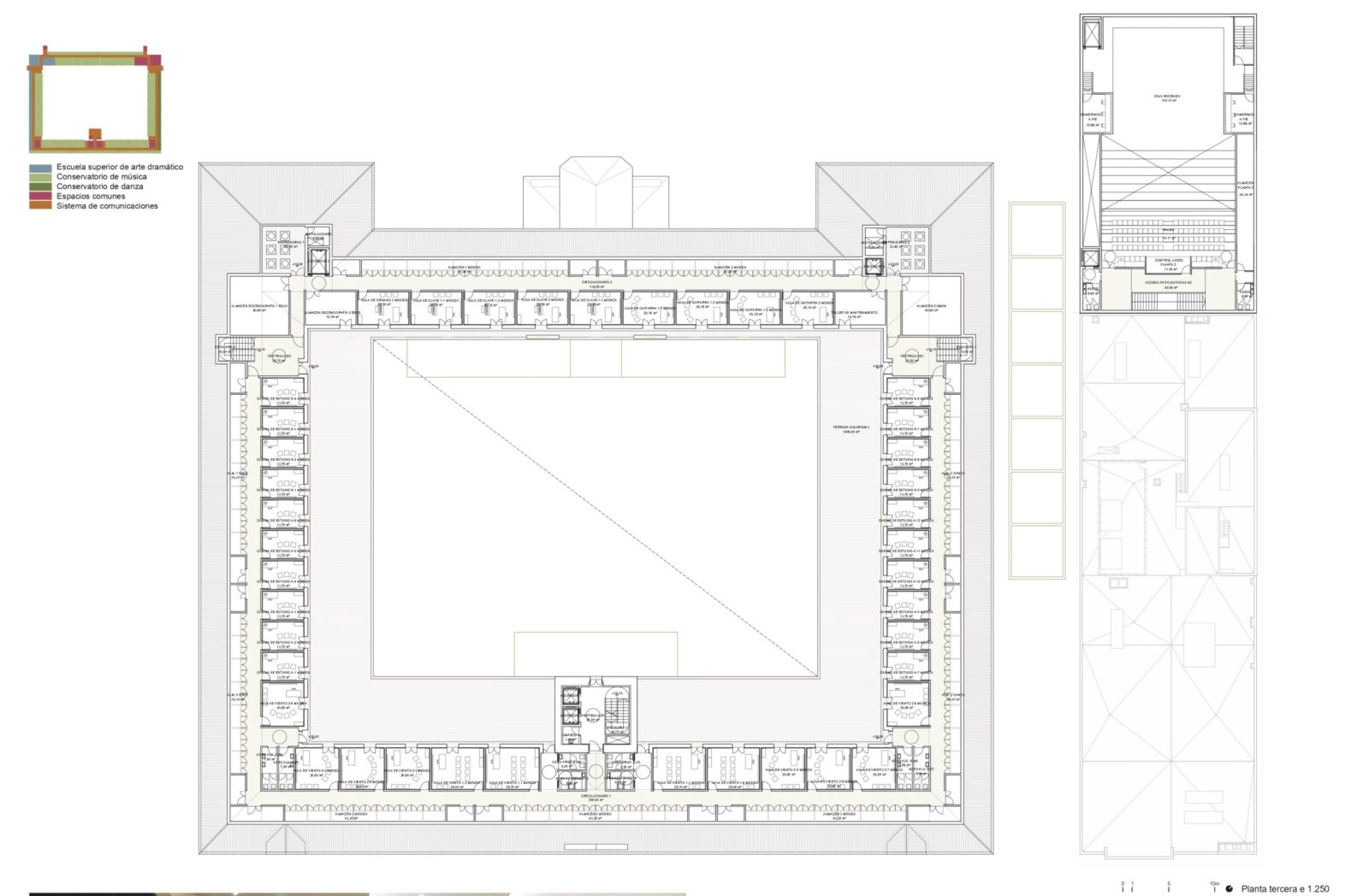
La rehabilitación se ha planteado en el marco de una estrategia urbana amplia, incluyendo el contexto urbano, los espacios libres que lo circundan y el antiguo edificio de instalaciones próximo al Antiguo Hospital -donde se ubicará un nuevo Auditorio- para implantar el nuevo complejo formativo en Artes Escénicas (Escuela de Arte Dramático, Escuela de Danza y Conservatorio de Música).
La intervención se resume en tres actuaciones:
- Recuperación del edificio histórico.
Mediante la demolición de cuerpos y entreplantas añadidos a lo largo del tiempo obtendremos de nuevo una visión y de nuevo una experiencia del edificio tal y como se concibió en su origen, recuperando todos los valores arquitectónicos que posee:
- Volumetría ordenada.
- Accesos jerarquizados, con un acceso principal monumental en fachada y accesos secundarios para servicios y circulación interna.
- Carácter sobrio, funcional y duradero, reforzado por la elección de materiales nobles.
- Carácter higienista: Iluminación natural y ventilación cruzada
- Patio como vertebrador espacial, lugar de encuentro y descanso.
Se lleva además a cabo una levísima y sutil transformación de la cubierta que permite albergar usos en el espacio bajo cubierta. En nuestra propuesta, además retranqueamos de forma mínima la fachada interior suroeste de este cuerpo bajo cubierta a fin de respetar de forma clara el contorno del patio original sin añadidos coplanares que impidan una lectura adecuada de la volumetría original y de la escala del patio.
Aprovechando la generosa distancia entre plantas que nos brinda esta tipología de edificios proponemos la ejecución de algunas entreplantas destinadas a instalaciones en las zonas de aseos, de esta manera podremos conducir por las diferentes estancias, aulas y espacios educativos las canalizaciones y conductos necesarios. Se minimiza así el paso de instalaciones de forma vertical y sobre todo el impacto que tuviesen estos sistemas e instalaciones en la cubierta.
- Contexto urbano y espacios exteriores.
Es precisamente el carácter de edificio aislado el que le confiere muchos de sus valores arquitectónicos y la monumentalidad e importancia en la trama urbana. El contexto no solo acaba en los límites de la parcela, entendemos que los espacios libres contiguos y la actividad que en ellos se desarrolla participan en la definición de los condicionantes a tener en cuenta a la hora de proyectar una solución adecuada.
Añadido a esto, la delicada situación del muro de contención que salva el desnivel entre la Av. de España y la calle de acceso al Antiguo Hospital ofrece una oportunidad para revisar la solución de continuidad entre los espacios urbanos aledaños (Av. de España, Parque de Gloria Fuertes, acerado, zona escolar de beso y adiós). Se aborda, por tanto, la intervención en los espacios exteriores desde las siguientes premisas:
- Ubicar el aparcamiento subterráneo aprovechando el desnivel existente en las fachadas noroeste y suroeste. Se minimiza la excavación y se ofrece la posibilidad de conectar el sótano (acceso rodado) al sótano del edificio existente y que cuenta con ascensor hasta este nivel.
- Concentrar el acceso rodado en la esquina sur de la parcela (punto de contacto con la Av. de España). El control de acceso rodado al aparcamiento subterráneo lo es también para el aparcamiento, trasiego y carga descarga en superficie.
- Liberar el tráfico rodado de la calle entre el Antiguo Hospital y la Biblioteca y el Auditorio generando un gran espacio de distensión urbana que propicie un lugar de encuentro y conexión entre los edificios.
- Poner en valor los espacios circundantes, dotándolos de las funciones básicas para el aparcamiento en superficie, trasiego de enseres y carga y descarga sin renunciar a la creación de espacios de estancia y descanso ligados a los diferentes usos del edificio.
- Nuevo auditorio.
La elección de transformar el antiguo edificio destinado a instalaciones en el Auditorio que un complejo como el que se proyecta necesita, culmina las intervenciones planteadas y supone el reto de permitir la conexión urbana de la calle Cónsul Lucio Cornelio Balbo con el Nuevo complejo formativo en Artes Escénicas. El diseño del auditorio introduce elementos técnicos que requiere el edificio y aprovecha algunas sinergias con el resto de los elementos existentes y proyectados:
- Nivel -1. Aloja la ampliación de la Biblioteca Pública con un archivo anexo a ella, en el resto de la planta se ubican de forma separada almacenes para la ESAD, el Conservatorio Oficial de Música y el Profesional de Danza, además del acceso al montacargas del auditorio y una escalera compartimentada que sirve a todos los niveles del auditorio.
- Nivel 0 (Calle interior del Hospital). Aloja otra ampliación de la Biblioteca Pública con un archivo anexo a ella en el que se abre un acceso a la galería cubierta de la calle interior. Al lado derecho del final de la galería cubierta que conecta con el edificio principal se abre un vestíbulo exterior por el que se accede al nivel inmediatamente superior mediante un ascensor accesible que da servicio al auditorio y una escalera que emerge en la plataforma superior.
En el extremo norte se ubican el muelle de carga y, aledaño a él, el almacén del auditorio. Al otro lado del corredor se alinean el montacargas, el centro de transformación con los grupos electrógenos y el centro de transformación del complejo educativo y la escalera compartimentada.
- Nivel 1 (Calle Cónsul Lucio Cornelio Balbo). En él se encuentran los flujos urbanos y los de las tres escuelas en un espacio cubierto que sirve de filtro según sean los eventos comunes, docentes o públicos. A un lado de él recaen las ventanillas de las taquillas, las oficinas y el vestíbulo del auditorio y al otro los servicios técnicos del auditorio. Con acceso directo desde la calle pública se encuentran las dos escaleras de evacuación de incendios.
- Nivel 2. Es el nivel superior del patio de butacas, al que se llega mediante un vestíbulo al que recaen el ascensor, la escalera, los aseos de público y la cabina de control. Se dispone en el lateral que recae al hospital un espacio vertical de instalaciones por el que discurrirán, entre otros, los conductos de climatización hasta los testeros laterales (retornos) y la cámara proyectada bajo el patio de butacas. Se completa la planta en este nivel con las salidas de incendios que conducen a la planta inferior y el escenario equipado según programa (acceso camerinos a pie de escenario, chácena, etc.).
- Nivel 3. Es el nivel de la platea, al que se llega mediante un vestíbulo al que recaen el ascensor, la escalera, los aseos de público, la cabina de control y un almacén de planta.
- Cubierta. Sobre el vestíbulo y convenientemente oculto en el volumen del edificio, se alojan las climatizadoras exteriores.
















